Не упусти свой шанс! Последние акции от застройщиков  ▼

Продается 4-комнатная квартира, Пресненская наб., 8С1

89 900 000 Р

Пресненская наб.8С1

Дата публикации: 13 сентября 2025

Дата обновления: 28 октября 2025

Телефон: 
Показать телефон

+7 (495) 104-56-15

Агентство:  ООО Метриум

Название: ЖК "Город Столиц"

От застройщика: 0 квартир в продаже

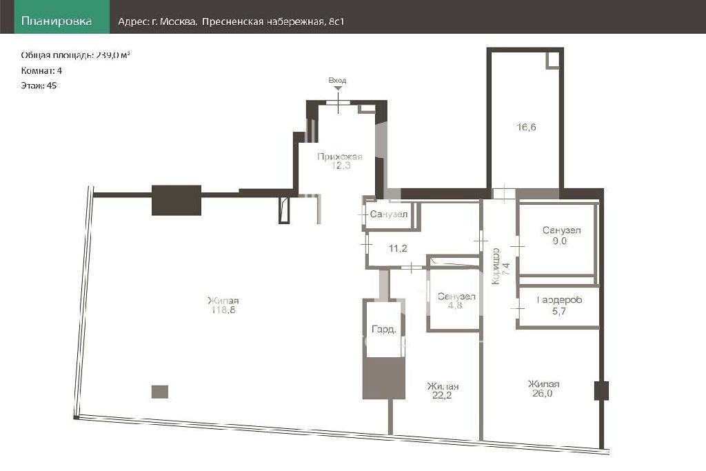
Этаж: 45 / 47

Общая: 239 м2

Жилая: не указано

Кухня: не указано

Комнаты: не указано

Балкон/лоджия: не указано

Лифт: не указано

Окна: не указано

Санузел: три санузла

Мусоропровод: не указано

Состояние квартиры: без отделки

Тип дома: монолитно-кирпичный

Год постройки: 2020

Территория: огороженная

Парковка: не указано

Статус сделки: продажа

Сделка: прямая продажа

Собственность: не указано

Основание права собственности: не указано

Описание

ID 24242 Предлагаются апартаменты в Москва Сити, Городе столиц площадью 239 кв. м.
Апартаменты имеют свободную планировку, позволяющую создать жилое пространство на любой вкус.
Из панорамных окон открываются потрясающие виды на Москва-реку!
В наличии машиноместо в подземном паркинге.
"Город столиц" это современный жилой комплекс, расположенный на территории Москва-Сити. В шаговой доступности от жилого комплекса находится станция метро "Выставочная".
Жителям доступны объекты собственной инфраструктуры и вместительный подземный паркинг. На территории комплекса действуют магазины, развлекательные центры, кафе и рестораны. Любителей активного образа жизни порадует наличие современных спортивных объектов. Здесь есть 25-метровый бассейн, SPA- и фитнес-центры.
Жителям обеспечен высокий уровень безопасности.

Квартира на карте

ПанорамыКарта
Спецпредложения
Добавить объявление